
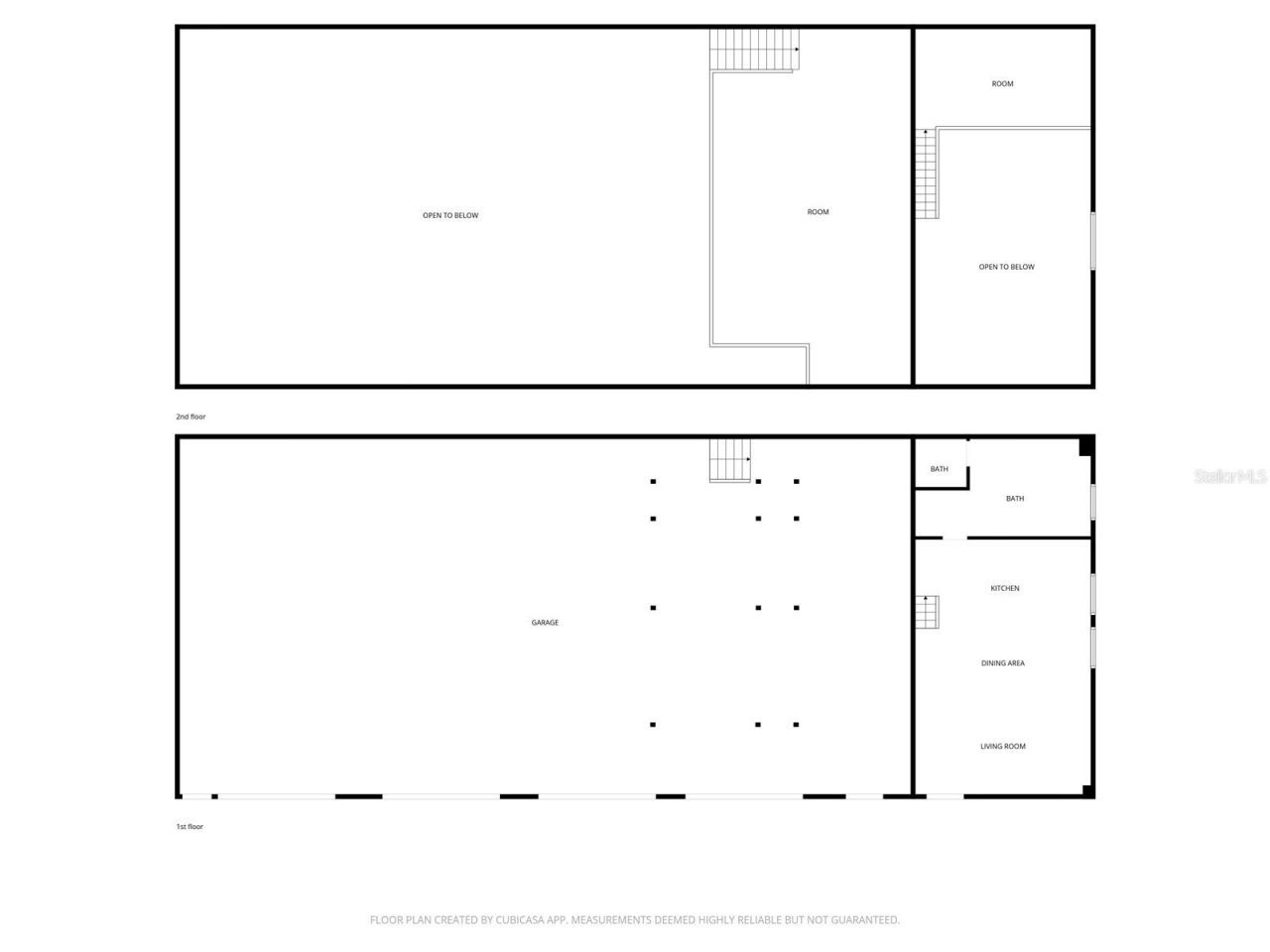
PRIVATE 9.86-ACRE COUNTRY RETREAT WITH MASSIVE STEEL BUILDING + LIVING QUARTERS!Bring your horses, cows, RV, and all your toys-this nearly 10-acre, fully fenced and cross-fenced property offers the space, privacy, and flexibility you've been looking for!The centerpiece is an impressive 40x100 insulated steel building featuring (3) 12-ft roll-up doors and a 13-ft sliding door, plus a 6 concrete floor-perfect for equipment, hobbies, or a workshop. Above, a HUGE loft provides exceptional storage, a...PRIVATE 9.86-ACRE COUNTRY RETREAT WITH MASSIVE STEEL BUILDING + LIVING QUARTERS!Bring your horses, cows, RV, and all your toys-this nearly 10-acre, fully fenced and cross-fenced property offers the space, privacy, and flexibility you've been looking for!The centerpiece is an impressive 40x100 insulated steel building featuring (3) 12-ft roll-up doors and a 13-ft sliding door, plus a 6 concrete floor-perfect for equipment, hobbies, or a workshop. Above, a HUGE loft provides exceptional storage, and out front you'll find a massive 100x20 concrete pad ideal for additional parking or workspace.Live comfortably while you build your dream home! The property includes a move-in ready apartment with full kitchen, bathroom, and washer/dryer-perfect for immediate use or guest quarters.Additional features include:Solar-powered electric gate for secure entry; Private well (no water bill!); Two large fuel tanks for farm equipment; Metal carport-perfect for a boat or RV; Detached 20x12 storage building; Shelving in main building INCLUDED!Enjoy the peace and beauty of this secluded, tree-filled property with gorgeous magnolias and room to roam.BONUS: Ranger/Polaris conveys with purchase-explore your land in style!Prime DeLand location on Marsh Rd: Just 20 minutes to Daytona Beach; Only 10 minutes to I-4 for easy access to Sanford & Orlando. This is a rare opportunity to own a versatile, ready-to-use property with endless potential-farm, homestead, business, or build your dream estate!
View MoreCourtesy of
Agency Name: CHARLES RUTENBERG REALTY ORLANDO
Agency Contact: 407-622-2122
Agent Name: Terry Bailey
Presented by
Agent Name: Hobe Sound
Agent Phone: 772.236.2943
Agency Title: The Keyes Company
Request Info
Send an email with a link to
4155 Marsh Road , Deland, FL 32724.
Email 4155 Marsh Road , Deland, FL 32724
Thank you for your inquiry! As a thank you, we have a Special Mortgage Offer for You.
We would like to provide you a free, no-obligation, home loan pre-approval review.